建築物の金属製内外装工事を手がける菊川工業株式会社(本社:東京都墨田区、代表取締役社長:宇津野嘉彦)は、太陽光発電にてバッテリーに充電し、その電力を用いて点灯させる独立電源型のLED照明灯「エコアヴェニュー ライト」を2018年1月より販売開始します。
「エコアヴェニュー ライト」は、菊川工業が製造しているLED照明灯「エコアヴェニューシリーズ」のラインアップに新たに追加した商品です。デザイン的な両面受光型ライトスルー太陽光パネルはそのままに、1本支柱のシンプルなタイプにすることで、より導入しやすい価格を実現しました。
「エコアヴェニュー ライト」は、菊川工業が製造しているLED照明灯「エコアヴェニューシリーズ」のラインアップに新たに追加した商品です。デザイン的な両面受光型ライトスルー太陽光パネルはそのままに、1本支柱のシンプルなタイプにすることで、より導入しやすい価格を実現しました。
■ 「エコアヴェニュー ライト」の特徴
(1) 太陽光発電とバッテリーを組み合わせた独立電源。
・電気工事不要。
・災害時や停電時でも点灯。
(2) 両面受光型ライトスルー太陽光パネルを採用。
・垂直設置のため、設置方位を選ばない。
・他にはない個性的なデザイン。
(3) 従来製品より高さをおさえた1本支柱。
・設置できる範囲が広がる。
・大型の基礎工事が不要のため、工期・工事費を圧縮。
(4) エコアヴェニューシリーズの廉価版。
・デザインとコストの両立。
・他のエコアヴェニューシリーズと組み合わせた広域設置。
■ 製品概要
製品名:エコアヴェニュー ライト (eco Avenue LITE)
価格:本体49.8万円~(基礎工事・据付工事・運搬費は都度見積)
納期:約1.5ヶ月
方式:ソーラーパネルとバッテリーを利用した独立電源LED照明灯
性能:両面受光型ソーラーパネル 表/裏65W/61W
バッテリー ディープサイクル12V90Ah×1台
照明 LED6W
照度センサーによる照明自動ON・OFF(最大14時間)
仕上:スチール 溶融亜鉛メッキ+ウレタン樹脂塗装
標準色:マットブラウン(指定色可)
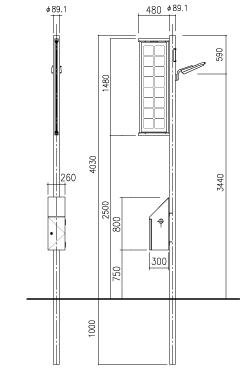
寸法:全長/照明高さ 4030mm/3440mm
■ 開発背景と展望
エコアヴェニューシリーズには、特にデザイン性と機能性の評価が高い「エコアヴェニュー こみち」がありますが、これまで価格の点で導入が見送られるケースがあり、コストダウンを計って欲しいという要望が多数寄せられていました。
そこで、エコアヴェニューシリーズのコンセプトである「垂直型両面受光発電ソーラーパネル」を残すことでデザインと性能を担保した廉価版の開発に着手。この度、従来型の「エコアヴェニュー こみち」より約4割のコストダウンを実現した「エコアヴェニュー ライト」を開発しました。
【設置場所イメージ・ターゲット】
● 公園や運動施設など。
● 役所・公民館・公共施設など。
● 商店施設や観光地。
● 広域のランドスケープ設計における、他のエコアヴェニューシリーズとの組み合わせ。
■ 菊川工業会社概要
菊川工業は1933年創業の金属建材メーカーです。創業以来、時代をリードする建築物に果敢に挑戦して参りました。昨年11月に開館した墨田区立すみだ北斎美術館の外装パネルなどにも参画しています。全ての仕事がお客様のオーダーメイドであり、常に新しい課題に挑み続けています。2009年からは、太陽光発電を組み合わせた建材一体型の製品を中心に、環境関連製品への取り組みを開始しています。
<施工例>
東京スカイツリー/展望台パネル、東京駅丸の内駅舎/柱型、渋谷ヒカリエ/シアター外装、東急プラザ表参道/万華鏡パネル、青森市文化観光交流施設「ねぶたの家 ワ・ラッセ」/外装鋼板スクリーン
など海外物件を含め多数
[社名] 菊川工業株式会社
[代表者] 宇津野 嘉彦 (うつの・よしひこ)
[所在地] 本社:東京都墨田区菊川2-18-12
工場(キクカワテクノプラザ):千葉県白井市中98-15
[設立] 1933年11月1日
[資本金] 1億円
[従業員数] 194名(2016年12月20日現在)
[URL] http://www.kikukawa.com/
[関連会社] キクカワタクト株式会社(環境建材販売)
<本件に関するお問合せは下記までお願いいたします>
菊川工業株式会社 Web営業チーム 担当 奥野木、田部井、中村
TEL:047-492-2014
E-mail:web@kikukawa.com
(1) 太陽光発電とバッテリーを組み合わせた独立電源。
・電気工事不要。
・災害時や停電時でも点灯。
(2) 両面受光型ライトスルー太陽光パネルを採用。
・垂直設置のため、設置方位を選ばない。
・他にはない個性的なデザイン。
(3) 従来製品より高さをおさえた1本支柱。
・設置できる範囲が広がる。
・大型の基礎工事が不要のため、工期・工事費を圧縮。
(4) エコアヴェニューシリーズの廉価版。
・デザインとコストの両立。
・他のエコアヴェニューシリーズと組み合わせた広域設置。
■ 製品概要
製品名:エコアヴェニュー ライト (eco Avenue LITE)
価格:本体49.8万円~(基礎工事・据付工事・運搬費は都度見積)
納期:約1.5ヶ月
方式:ソーラーパネルとバッテリーを利用した独立電源LED照明灯
性能:両面受光型ソーラーパネル 表/裏65W/61W
バッテリー ディープサイクル12V90Ah×1台
照明 LED6W
照度センサーによる照明自動ON・OFF(最大14時間)
仕上:スチール 溶融亜鉛メッキ+ウレタン樹脂塗装
標準色:マットブラウン(指定色可)
寸法:全長/照明高さ 4030mm/3440mm
■ 開発背景と展望
エコアヴェニューシリーズには、特にデザイン性と機能性の評価が高い「エコアヴェニュー こみち」がありますが、これまで価格の点で導入が見送られるケースがあり、コストダウンを計って欲しいという要望が多数寄せられていました。
そこで、エコアヴェニューシリーズのコンセプトである「垂直型両面受光発電ソーラーパネル」を残すことでデザインと性能を担保した廉価版の開発に着手。この度、従来型の「エコアヴェニュー こみち」より約4割のコストダウンを実現した「エコアヴェニュー ライト」を開発しました。
【設置場所イメージ・ターゲット】
● 公園や運動施設など。
● 役所・公民館・公共施設など。
● 商店施設や観光地。
● 広域のランドスケープ設計における、他のエコアヴェニューシリーズとの組み合わせ。
■ 菊川工業会社概要
菊川工業は1933年創業の金属建材メーカーです。創業以来、時代をリードする建築物に果敢に挑戦して参りました。昨年11月に開館した墨田区立すみだ北斎美術館の外装パネルなどにも参画しています。全ての仕事がお客様のオーダーメイドであり、常に新しい課題に挑み続けています。2009年からは、太陽光発電を組み合わせた建材一体型の製品を中心に、環境関連製品への取り組みを開始しています。
<施工例>
東京スカイツリー/展望台パネル、東京駅丸の内駅舎/柱型、渋谷ヒカリエ/シアター外装、東急プラザ表参道/万華鏡パネル、青森市文化観光交流施設「ねぶたの家 ワ・ラッセ」/外装鋼板スクリーン
など海外物件を含め多数
[社名] 菊川工業株式会社
[代表者] 宇津野 嘉彦 (うつの・よしひこ)
[所在地] 本社:東京都墨田区菊川2-18-12
工場(キクカワテクノプラザ):千葉県白井市中98-15
[設立] 1933年11月1日
[資本金] 1億円
[従業員数] 194名(2016年12月20日現在)
[URL] http://www.kikukawa.com/
[関連会社] キクカワタクト株式会社(環境建材販売)
<本件に関するお問合せは下記までお願いいたします>
菊川工業株式会社 Web営業チーム 担当 奥野木、田部井、中村
TEL:047-492-2014
E-mail:web@kikukawa.com



