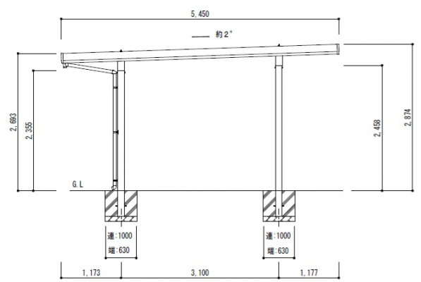
2022年12月13日、インフィパワー合同会社(本社:神奈川県横浜市)は、3台駐車ソーラーカーポートCP55-L55W60の販売を開始いたしました。日本国内メーカーのカーポートに7.5KWソーラー発電キットと組み合わせたソーラーカーポートです。
耐風圧強度 46m/s
耐雪 約40cm
※数値は目安です。商品保証値ではありません。構成や駐車台数はカスタマイズ可能です。
キット内容
・単結晶パネル EG-300M60-C×25枚(7.5KW)
・HUAWEI 4.95KW パワーコンディショナー SUN2000-4.95KTL-NH2 ×1台
・ソーラーパネル接続用3.5SQ CVケーブル 100m、MC4コネクタ ×5セット
・アルミ合金・折板屋根カーポート セット
・ソーラーパネル固定用金具 x 60セット
耐雪 約40cm
※数値は目安です。商品保証値ではありません。構成や駐車台数はカスタマイズ可能です。
キット内容
・単結晶パネル EG-300M60-C×25枚(7.5KW)
・HUAWEI 4.95KW パワーコンディショナー SUN2000-4.95KTL-NH2 ×1台
・ソーラーパネル接続用3.5SQ CVケーブル 100m、MC4コネクタ ×5セット
・アルミ合金・折板屋根カーポート セット
・ソーラーパネル固定用金具 x 60セット
50m2未満の面積ですので適合証明での建築確認申請が可能です。
*カスタマイズ可能です。駐車台数、部材の数量、種類、適合証明、建築確認等につきましては、お気軽にお問合せください。
*カスタマイズ可能です。駐車台数、部材の数量、種類、適合証明、建築確認等につきましては、お気軽にお問合せください。



