業務用エアコンの販売・修理事業を展開する伊藤テクノ株式会社(所在地:東京都葛飾区、代表取締役:伊藤丈史)は自社オフィスを7月7日(日)にリニューアルします。
※ 働く社員の気持ちをお客様にもお見せしたいという意向から商談スペースとオフィスを一体に
※ 働く社員の気持ちをお客様にもお見せしたいという意向から商談スペースとオフィスを一体に
■製造業初のイノヘ゛ーションを起こす企業としミッション「Air Happy Style~with eco~※」を社屋に反映
リニューアルしたオフィスは、当社のミッション「Air Happy Style ~with eco~」を社屋に反映すること、そして、そこで働く社員の気持ちをお客様にもお見せすることを念頭に置きました。
「Air Happy Style ~with eco~※」は、当社がお客様に空間(空気)を通して常に「いいね!」と、幸福を感じていただけるように関わっていくことです。そしてお客様の環境に最善と思われる提案を、情熱をもって行い、常に幸福感を創っていくこと。またエコロジーというエネルギー問題についても、革新的な技術と提案を行うべく、積極的に情報収集を行い、快適な職場創りと地球環境に貢献する「空気の総合商社」を目指しています。
そのミッションを体現する空間は、爽快感ある空気(空間)である。こんなことを突き詰めると、まるでリゾートにあるようなオフィス空間となりました。
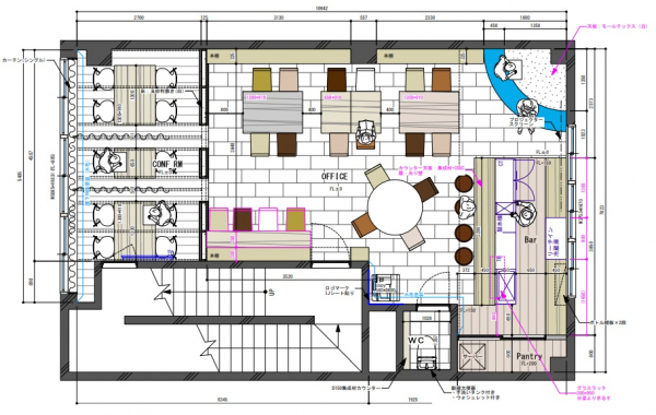
また、社内のレイアウトも社員の席が決まっておらず、好きな場所で仕事が出来るようにしました。一般的なオフィスでよく見られるのは、部署ごとにデスクが分かれている島型のオフィスです。以前の当社のオフィスも同様で、商談スペースも別でした。しかし、シリコンバレーにあるようなイノベーションを起こす企業は、常時作業する特定のデスクが決まっておらず、いわゆるフリーアドレス、オープンアドレスのオフィスが多いです。そして、社員は好きなデスクが利用可能で、好きな時に好きな場所に仕事が出来、自由に社内を動き回ることで新しいコミュニケーションが生まれ、このような空間で時間を過ごしたら、日々の仕事も創造性が生まれイノベーションが起こるのではないか!?という構想で完成された当社のオフィスです。尚、このようなオフィス環境は製造業では当社が日本初です。
※ 定時を過ぎたらくつろげつようにバーカウンターを設置
リニューアルしたオフィスは、当社のミッション「Air Happy Style ~with eco~」を社屋に反映すること、そして、そこで働く社員の気持ちをお客様にもお見せすることを念頭に置きました。
「Air Happy Style ~with eco~※」は、当社がお客様に空間(空気)を通して常に「いいね!」と、幸福を感じていただけるように関わっていくことです。そしてお客様の環境に最善と思われる提案を、情熱をもって行い、常に幸福感を創っていくこと。またエコロジーというエネルギー問題についても、革新的な技術と提案を行うべく、積極的に情報収集を行い、快適な職場創りと地球環境に貢献する「空気の総合商社」を目指しています。
そのミッションを体現する空間は、爽快感ある空気(空間)である。こんなことを突き詰めると、まるでリゾートにあるようなオフィス空間となりました。
また、社内のレイアウトも社員の席が決まっておらず、好きな場所で仕事が出来るようにしました。一般的なオフィスでよく見られるのは、部署ごとにデスクが分かれている島型のオフィスです。以前の当社のオフィスも同様で、商談スペースも別でした。しかし、シリコンバレーにあるようなイノベーションを起こす企業は、常時作業する特定のデスクが決まっておらず、いわゆるフリーアドレス、オープンアドレスのオフィスが多いです。そして、社員は好きなデスクが利用可能で、好きな時に好きな場所に仕事が出来、自由に社内を動き回ることで新しいコミュニケーションが生まれ、このような空間で時間を過ごしたら、日々の仕事も創造性が生まれイノベーションが起こるのではないか!?という構想で完成された当社のオフィスです。尚、このようなオフィス環境は製造業では当社が日本初です。
※ 定時を過ぎたらくつろげつようにバーカウンターを設置
■背景 ~人材の若返りが急務な業界、職人のイメージ「3K」から「憧れられる存在」へ~
社会全体の課題として高齢化と労働人口減少が挙げられていますが、当社が属する建設業は特に深刻です。2016年度の国土交通省の「建設業を取り巻く情勢・変化 参考資料」によると、建設業の約3割が55歳以上と高齢化が顕著に進んでいます(出典:総務省「労働力調査」を基に国土交通省で算出)。
10年後、20年後の業界を考えた場合、これからの社会を担う子供たちから職人はかっこいい!と憧れの存在にならなければ、ますまず職人離れが進んでいくと伊藤は危惧しています。
「職人のイメージ=3K」から「職人はかっこいい」存在となるべく、まずは当社からと考え、当社独自で考案した社員研修「伊藤テクノスクール」を行うなど、様々な取り組みを行っています。
社会全体の課題として高齢化と労働人口減少が挙げられていますが、当社が属する建設業は特に深刻です。2016年度の国土交通省の「建設業を取り巻く情勢・変化 参考資料」によると、建設業の約3割が55歳以上と高齢化が顕著に進んでいます(出典:総務省「労働力調査」を基に国土交通省で算出)。
10年後、20年後の業界を考えた場合、これからの社会を担う子供たちから職人はかっこいい!と憧れの存在にならなければ、ますまず職人離れが進んでいくと伊藤は危惧しています。
「職人のイメージ=3K」から「職人はかっこいい」存在となるべく、まずは当社からと考え、当社独自で考案した社員研修「伊藤テクノスクール」を行うなど、様々な取り組みを行っています。
■今後の展開
当社のオフィスはじめ、今後の製造業において良いと思ったことは社内外問わず取り入れていく予定です。また、今後は「伊藤テクノスクール」を、各企業の職人向けに開催していく予定です。
■伊藤テクノ会社オフィス概要
設計監理: 株式会社 アオ インテリア
代表: 代表取締役 塚原 靖弘
設立: 2013年9月
所在地: 千葉県市川市原木1-1-20
U R L: https://www.ao-interior.com/
当社のオフィスはじめ、今後の製造業において良いと思ったことは社内外問わず取り入れていく予定です。また、今後は「伊藤テクノスクール」を、各企業の職人向けに開催していく予定です。
■伊藤テクノ会社オフィス概要
設計監理: 株式会社 アオ インテリア
代表: 代表取締役 塚原 靖弘
設立: 2013年9月
所在地: 千葉県市川市原木1-1-20
U R L: https://www.ao-interior.com/
■会社概要
社名 :伊藤テクノ株式会社
代表取締役 :伊藤 丈史 (いとう たけし)
設立 :2013年3月4日
資本金 :1,000万円(2017年1月現在)
所在地 :東京都葛飾区東新小岩5-2-20 信和商会ビル1F.2F
事業内容 :業務用エアコン(販売・工事・修理・分解洗浄・保守メンテナンス)
エアコンの取付け
電気工事
電力の見える化
屋根、外壁の塗装
AI・IOT
水道設備
設備全般
建設業許可 :電気工事業 東京都知事許可 般-28 第144936号
管工事業 般-29 第144936号
URL :コーポレートサイト https://itotechno.com
社名 :伊藤テクノ株式会社
代表取締役 :伊藤 丈史 (いとう たけし)
設立 :2013年3月4日
資本金 :1,000万円(2017年1月現在)
所在地 :東京都葛飾区東新小岩5-2-20 信和商会ビル1F.2F
事業内容 :業務用エアコン(販売・工事・修理・分解洗浄・保守メンテナンス)
エアコンの取付け
電気工事
電力の見える化
屋根、外壁の塗装
AI・IOT
水道設備
設備全般
建設業許可 :電気工事業 東京都知事許可 般-28 第144936号
管工事業 般-29 第144936号
URL :コーポレートサイト https://itotechno.com



